Bilocale in vendita

Nova Milanese, Via O. Favaron
€ 99.000
2 locali 2 locali
60 Mq 60 Mq
1 bagno 1 bagno

Bilocale in vendita

Nova Milanese, Via O. Favaron

Descrizione annuncio

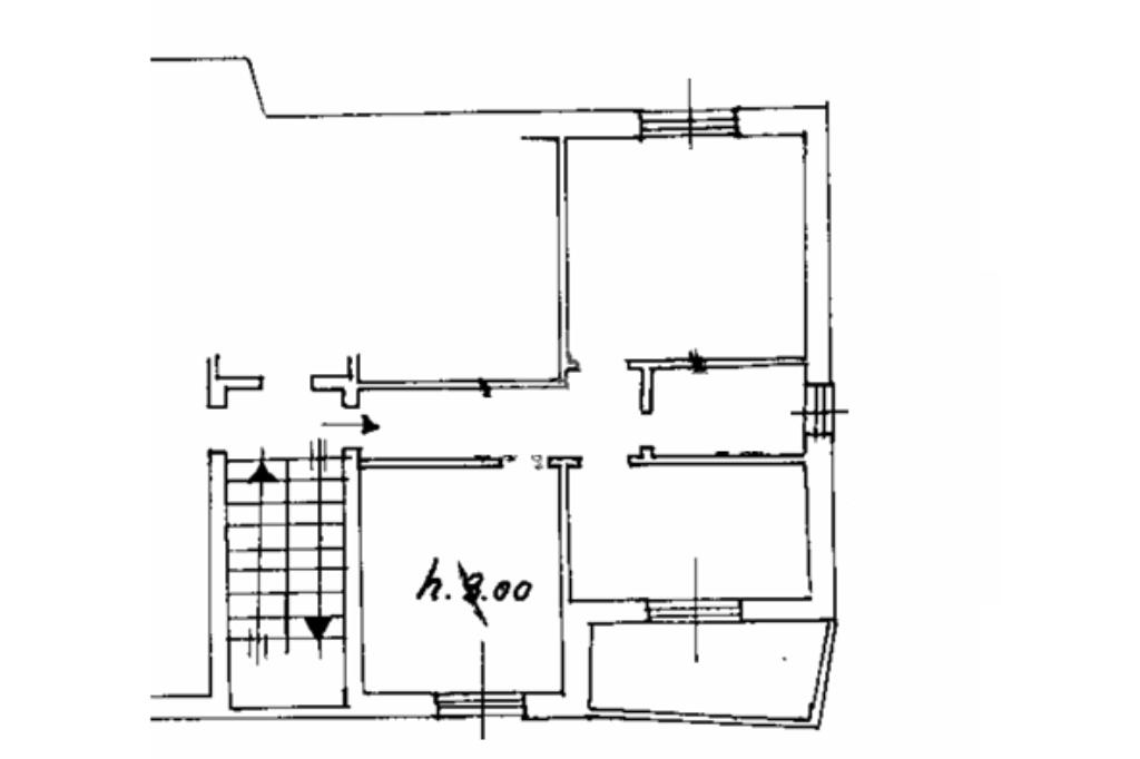
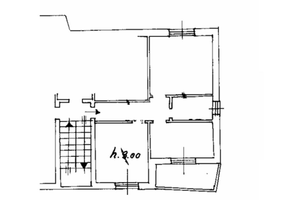
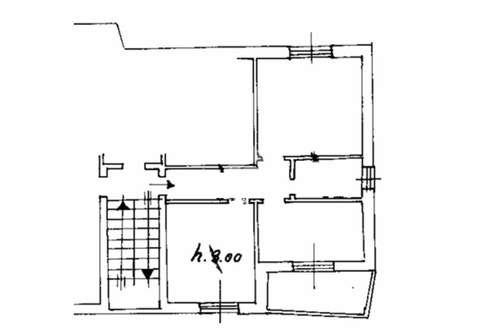
Proponiamo in vendita un accogliente appartamento di due locali situato al terzo ed ultimo piano di una palazzina priva di ascensore.

L’ingresso si apre su un corridoio che distribuisce in modo funzionale tutti gli ambienti della casa, creando una piacevole continuità tra gli spazi.

Sulla destra si trova il soggiorno, un ambiente luminoso grazie alla presenza di una finestra che permette alla luce naturale di valorizzare lo spazio.

Proseguendo si accede alla cucina abitabile, comoda e ben organizzata, arricchita da un balcone che dona ulteriore luminosità e offre uno sfogo esterno.

Sul lato opposto del corridoio si sviluppa la zona notte, composta da una camera da letto ampia e luminosa.

Al termine del corridoio troviamo il bagno, completo di vasca e valorizzato dalla presenza di una finestra.

L’appartamento è dotato di riscaldamento centralizzato con termovalvole, soluzione che consente una gestione più efficiente dei consumi e una regolazione autonoma della temperatura nei diversi ambienti.

Gli infissi, realizzati in PVC con doppio vetro, assicurano un buon isolamento termico e acustico, migliorando il comfort abitativo e contribuendo al risparmio energetico.

L’appartamento gode di una tripla esposizione verso Ovest, Est e Nord, caratteristica che assicura una buona illuminazione naturale durante tutta la giornata.

Completa la proprietà una cantina.

Mostra tutto

Nelle vicinanze

Trasporto pubblico Trasporto pubblico
Via Diaz - Via Favaron (Nova Milanese)
Via Diaz - Via Favaron (Nova Milanese)
210 m
Via Diaz - Via Nenni (Nova Milanese)
Via Diaz - Via Nenni (Nova Milanese)
210 m
Ricariche auto elettriche Ricariche auto elettriche
Centro Commerciale Brianza
2,7 Km
Scuole Scuole
Scuola Primaria Gianni Rodari
340 m
Scuola Primaria Anna Frank
530 m
Scuola Primaria Don Milani
620 m
Scuola Secondaria di primo grado Giovanni Segantini
670 m
Scuola Primaria Ignoto Militi
880 m
Farmacia Farmacia
Comunale 2
240 m
Futura
620 m
Grandi
680 m
Comunale 1
710 m
Comunale 3
1,1 Km
Supermercati Supermercati
Penny
260 m
Lidl
290 m
Unes
400 m
Carrefour Express EREDI MARCHESI SRL
920 m
Famila
1,3 Km
Negozi Negozi
Negozi
830 m
Il forno dei Michelazzo
1,8 Km
Panetteria Pergolino
2,3 Km
Calzedonia
2,3 Km
Confezioni Baffa
2,4 Km
Bar Bar
Bar
550 m
Aurora
1,8 Km
Bar "Babel"
1,9 Km
Z3
1,9 Km
Emotion
2,0 Km
Ristoranti Ristoranti
Brazao
440 m
Pizzeria Napoletana 081
980 m
Ran
1,1 Km
Sakura
1,4 Km
MU fish
1,5 Km
Mostra tutto

Caratteristiche

Rif.:
61204664
Piano:
3 di 3 (ultimo Piano)
Balconi:
1
Camere da letto:
1
Arredamento:
Assente
Condizionamento:
Assente
Mostra tutto
Prezzo Prezzo
€ 99.000
Rata mutuo Rata mutuo
€ 472 / mese
Spese annue Spese annue
€ 1.100
Proponi il tuo prezzoProponi il tuo prezzo
Immobile valutato con T·Valuta

Classe Energetica

G
G
G
G
G
G
G
G
G
EP globale non rinnovabile:
0.00 kW h/m² anno
EP globale rinnovabile:
0.00 kW h/m² anno
EP invernale del fabbricato:
EP estiva del fabbricato:
Anno di costruzione:
1963
Riscaldamento:
Centralizzato
Tipo impianto:
A radiatori
Tipo alimentazione:
Metano

Ti interessa visionare l'immobile?

Fissa un appuntamento  Fissa un appuntamento

Richiedi informazioni

Clicca su Leggi per aprire l'informativa
* Questi campi sono obbligatori

Calcola il tuo mutuo

Semplice e senza impegno
Anticipo

( % )
Mutuo

( % )

pochi semplici passi

inserisci i tuoi dati
Questionario completato
Grazie per aver richiesto un appuntamento senza impegno con un nostro Consulente del Credito e Assicurativo.

Hai inserito correttamente tutti i dati necessari e a breve riceverai una e-mail con un link da convalidare per inviare i tuoi dati.
Affiliato
Nova Immobiliare Sas
Via Locatelli, 24 20834 Nova Milanese (MB)

Il nostro staff


  • Chiara Tosi
    Coordinatrice

  • Andrea Giacomiello
    Affiliato
Via Locatelli, 24 20834 Nova Milanese (MB)
Zona: Nova Milanese
Mostra su mappa
Orari: lunedì al venerdì 09.00 - 12.30 e 14.30 - 20.00; sabato 09.00 - 12.30 e 14.30 - 17.30
Affiliato
Nova Immobiliare Sas
Via Locatelli, 24 20834 Nova Milanese (MB)

2026 Tecnocasa Franchising S.p.A. - P. IVA 08365160152 - Via Monte Bianco 60/A 20089 Rozzano (MI). Ogni agenzia ha un proprio titolare ed è autonoma. Privacy policy | Policy utilizzo | Cookie policy